应用新型水火管锅炉技术,锅炉有螺纹烟管受热面不积灰,结构紧凑,检修方便等优点。如果水质不达标,直供采暖时管网水带有的夹杂物(淤泥,铁锈等),会使锅炉受热面结垢和夹杂质沉积,造成爆管、管板开裂、锅壳底部鼓包等事故。也可能因为锅水未除氧而造成受热面氧腐蚀、锅炉管穿孔、锅壳厚度减薄等安全性后果。
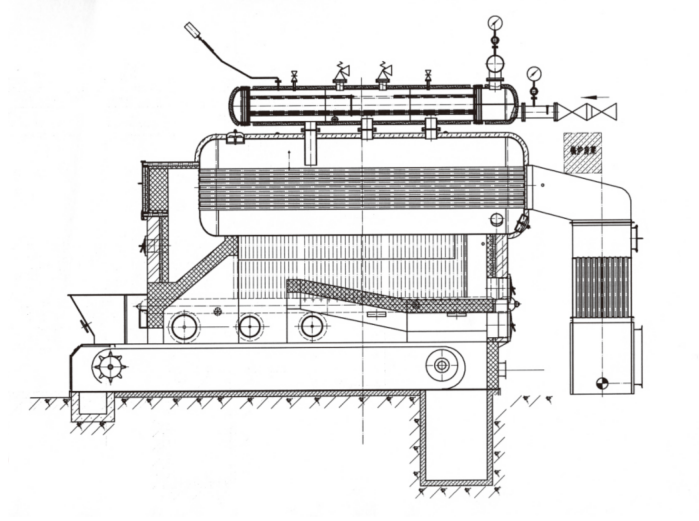
本相变热水锅炉(见锅炉图),锅炉顶部是相变换热装置,蒸汽在换热管上冷凝成水,将热量传递给管中的供暖循环水(供给用户采暖),采暖用的循环水与锅炉水分开,完全保护了锅炉受火的壁面。
1.锅炉“锅”中的水,加热一蒸发成汽一冷凝一蒸发成汽..周而复始,几乎无需补水。密闭的相变装置中,換热管外是蒸汽.换热管内是供采暖的循环水,两个系统互不混合。锅炉各受热壁面既不结垢、氧化腐蚀,又不可能有循环水来杂物的沉积。
2.新型水火管锅炉螺纹烟管烟气侧不积灰,螺纹烟管和相变换热管的水侧又不结垢,受热面总处于清洁状态,解决了锅炉运行因积灰、结垢,造成出力、效率下降的问题,可做到锅炉的出力、效率能够始终不变,进而达到理想的节能效果。
3.蒸汽锅炉运行中最担心的就是锅炉缺水事故,由于锅炉几乎不需要排污,也很少有汽的外溢,锅炉几乎无需补水,司炉工不用时时关心水位变化。
4.锅炉一个采暖期几乎只用“一锅水”,无需补水,也无需除氣,省去水处理和除氣器的设备费用和运行费用。
新型相变燃生物质及燃煤热水锅炉结构示意图

售前咨询专员
